Project n.58 (part 2)

Project n. 58 was a part 2 continuation whereby interior works were carried out. This comprised of a full house renovation including loft conversion, walk-in bespoke wardrobe at loft level and ensuite. New first floor bathroom, newly refurbished first floor bedroom and fitted furniture. New wooden floor throughout and oak staircase through, inc. finish decoration of walls and ceilings.

Completed Project Images

The client was very pleased with previously completed external works and requested a part 2, interior design project to be undertaken.  

Progress Construction Images

Image gallery with captions of photos during construction carried by ADL Design & Build Ltd 

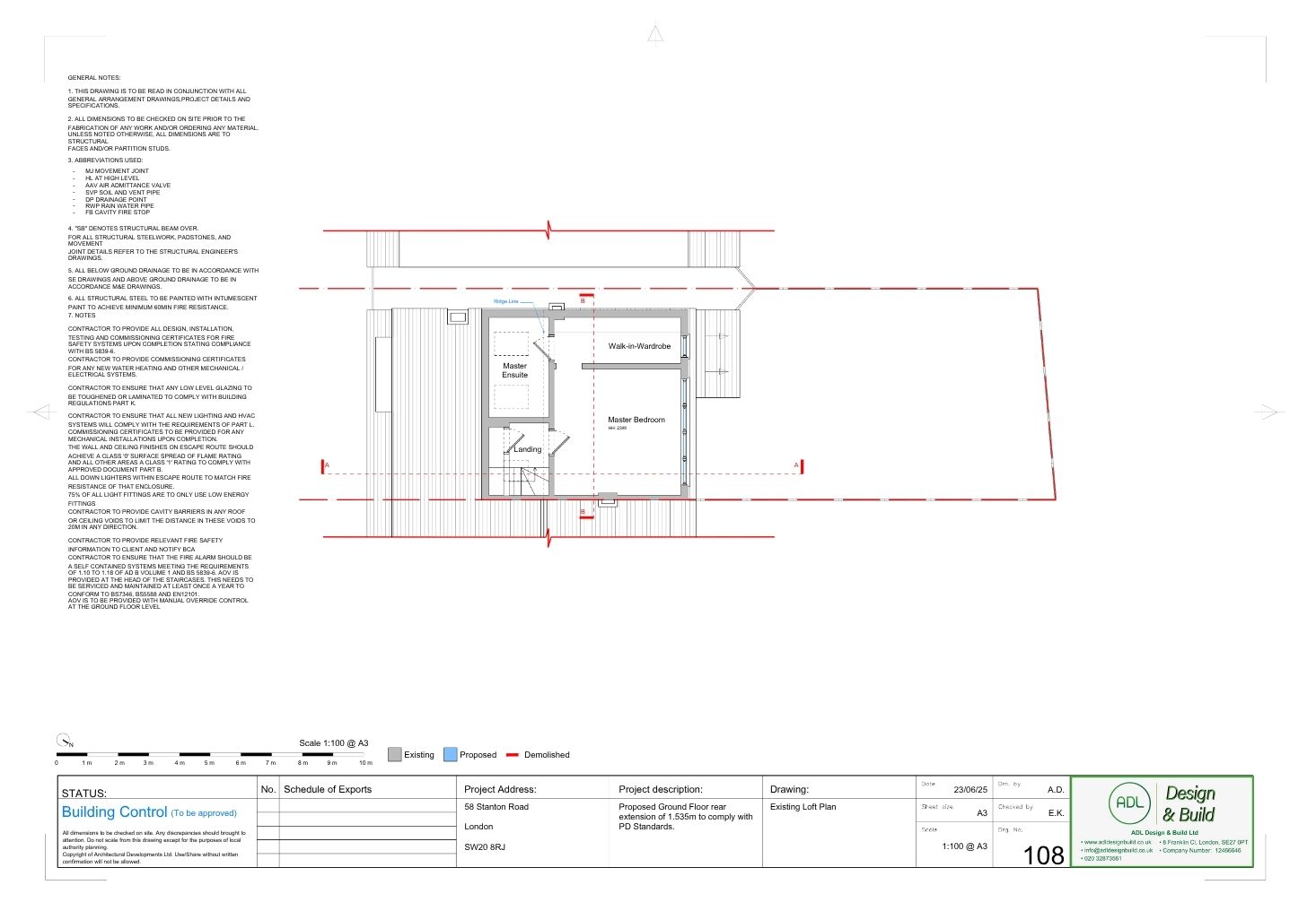
Drawings by ADL Design & Build

Proposed drawings illustrating the proposed project.

Would you like to have a conversation on how we can assist with your project?

Please fill the form below

Name

Schedule a call back

Book a call back at a time that is convenient for you through our new call-back scheduling system. Someone from our team will call you punctually at the time selected for an introduction call about your project.