Architectural Service

Turning your vision into architectural designs that are functional, planning-approved, and ready for construction

ADL Design and Build offers expert architectural services tailored for home extensions, loft conversions, and property renovations across London and surrounding areas. Our experienced team guides homeowners through every stage — from concept design and planning applications to construction-ready drawings. We specialise in transforming living spaces with innovative, functional designs that align with local planning regulations and client aspirations. Whether you’re expanding upward, outward, or reimagining your space, we deliver complete architectural packages that simplify the process and maximise your home’s potential.

3
LOFT CONVERSIONS

Client Journey: Navigating Our Architectural Service

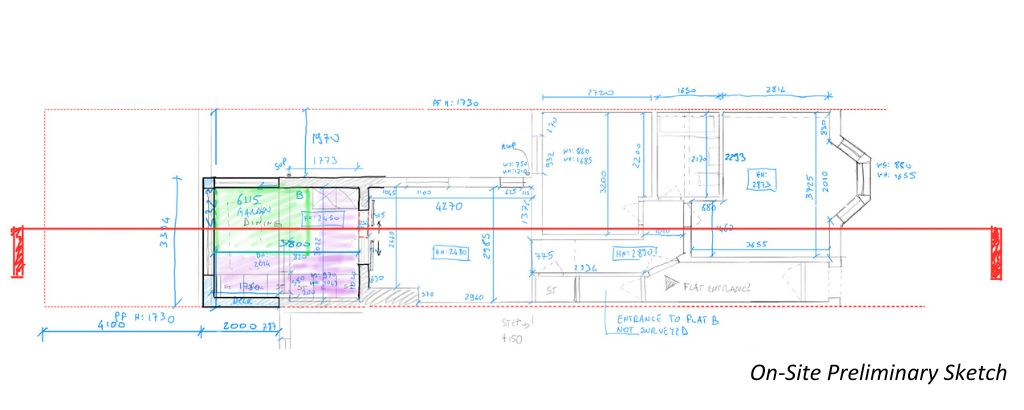
Measured Survey

This is the first step of any project’s process. It starts with an on-site survey, where our team can understand the existing layout of the property, the existing services connections, electricals and the structural load bearing walls. During the first on-site meeting the brief will also be refined and the designers can start giving creative and practical inputs to the client.

Timeline: The survey can be booked within 24/48 hours from the official appointment

Existing Drawings

Once the measured survey is complete, we prepare detailed
existing drawings that accurately represent the property’s current condition. These serve as the foundation for all future design work and give clients a clear, to-scale reference when exploring design ideas — particularly useful when previous plans or estate agent drawings are incomplete or inaccurate

Proposed Drawings

Using the data collected from the survey, our design team develops proposed layout options that align with the client’s goals, planning requirements, and budget. This stage is collaborative, with meetings conducted via Zoom, screen share, or in person to review and refine each proposal. We typically present multiple design alternatives to identify the most practical and visually appealing solution.

Planning Submission

Once all the documentation for planning is completed, including drawings and additional documents (should they be required), we will fill all the forms required and prepare the application in our client’s behalf. Throughout the review period, we maintain regular communication with planning officers and provide clients with updates at each stage.

Timeline: Planning decisions typically take approximately 8–10 weeks

3D Graphics

To help clients visualise the project, we create high-quality 3D graphics that illustrate both exterior and interior spaces. Our interior packages can also include:
– Electrical and plumbing layout,
– Finishes materials (flooring etc.),
– Feature bespoke cabinetry & wardrobes,
– Kitchen design in conjunction with the manufacturers,
– Glazing design in conjunction with the manufacturers.
– Construction details and drawings
Ensuring every design element is cohesive and build-ready.

Building Regulations Drawings

Following planning approval, we produce a comprehensive set of building regulation drawings that detail insulation, floor build-ups, and structural information. Matters not relevant to building control will not be illustrated in the set. These technical drawings ensure compliance with building control standards and facilitate smooth approval from building control inspectors before construction begins.

Introduction to Separate Consultants

To streamline the process, we connect clients with the key consultants involved in the architectural stage, ensuring seamless coordination across all disciplines and offering the flexibility to select their preferred contractor for the works. 
– Structural Engineers: Prepare the technical details and specifications of the beams and drainage to allow other comparable construction companies as well as ADL Design & Build Ltd to finalise the tenders.
– Party wall surveyors: Assess whether a party wall award is required based on proposed drawings.
– Building Control Surveyors: Oversee compliance inspections; we can recommend trusted inspectors or work with the client’s preferred choice

Paper Copy Handover of Files

At this phase, the client would have clarity on which contractor is selected to carry out the works. In this case should the client wish to proceed with ADL Design & Build, the stage 2 drawings are free of charge and transition directly into the build package, as well as project management and site visits, ensuring a smooth continuation from design through to delivery.

However, if the client wishes to proceed with another contractor, ADL Design & Build would organise for a handover of the drawings composed of two site visits minimum: x1 Pre-start of the build, x1 at a key stage of the build (usually at the structural alterations phase)

Get in touch for an Architectural Quote

Client Testimonials

“Working with Emilio and ADL team has been a pleasure from the start. They have provided valuable advice and helped us prepare for construction, from very thorough technical drawings, to structural engineering and liaison with party-wall. The builders were impressed with the details and allowed them to provide accurate quotations. We would recommend the ADL team to anyone looking to undertake a project. Great level of communication, dedication and knowledge.”
Lois Andrew
"ADL Design & Build has recently completed a rear extension and loft conversion at our family house in Wimbledon. From planning permission, to clear estimate and smooth construction process we couldn’t be more pleased with the end result. Never felt let down and always looked after by the project manager and owner Emilio, during the whole process with regular updates and site meetings. We love the end result. Thank you ADL team!"
Sagar Balgobhind

Subscribe to Receive our entire Design and Build E-book

Stay in touch to see our latest project updates!

© 2026 All Rights Reserved.