
Demolishing a 3 Bed House to Build a Block of 5 Flats
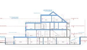
The site on which the existing 3 bedroom house sits

The site on which the existing 3 bedroom house sits

With the Planning Gain Promotion Agreement, we strive to provide you

The land is a crucial asset one can own, and

The need for development can require us to come across

If you want to change the purpose of a property,

Whether a residential skyscraper or a commercial building, all the

The need for development can necessitate looking for profitable opportunities,

During the development of land or building, the planning permission

The land is a valuable asset, which can bring appreciable

Land ready for development can need you to look for

As a landowner, you can leverage the best out of
Unit B111, Parkhall Trading Estate, 40 Martell Road, SE21 8EN
Copyright “ADL Design & Build Ltd” | Company n. 12466646 | Business insurance policy n. PSC10002523453/00